Re-mix

  

Student TuDelft | Final project | 2007


Professors: Klaske Havik | Martin de Jong


The motive of today’s society, economical benefits, has in our Western World been altered in the past decades: it shifted from a production- towards a knowledge based economy. Therefore creativity has become the engine of economical growth and did the attraction of the creative class become a new strategic and governmental expedient for boosting the economy over inner-city revitalization processes. Consequence: Gentrification. This will generate next to the -mostly- economical benefits, a social cleave.

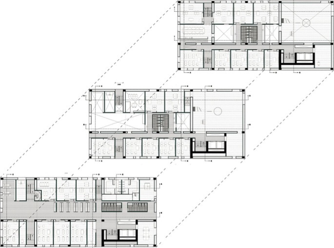
My design, a secondary school emphasizing on learning by doing, in its appearance with its specific program (supermarket, flower shop, bike repair and cafe) on its chosen location, tries to anticipate on this. It will allow youngsters for the hood being in contact with the gentrifiers and vice-versa, creating an understanding towards each others social status.


architecture_main.html

8/9

<<